7336 Royal Oak Dr, Spring Hill, FL 34607
Toggle Navigation
Images
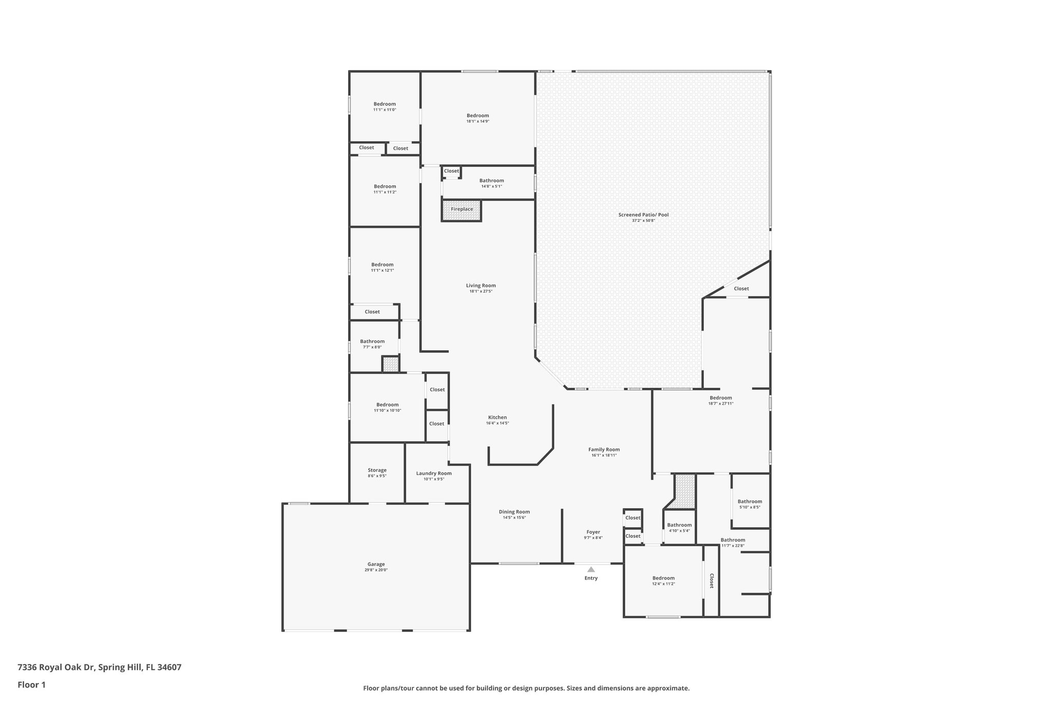
Floor Plans
3D Tour
Map
7336 Royal Oak Dr
Spring Hill, FL 34607
Scroll to Content
Images
Slideshow
Photo Grid
Hide
Previous
Next
Show more
Floor Plans
Slideshow
Photo Grid
Hide
Previous
Next
3D Tour